Apartamento Ampurdán
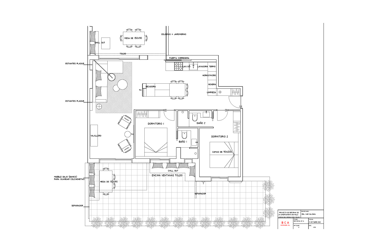
Este apartamento situado en primera línea de mar tenía un potencial increíble. 85m2 de interior y dos terrazas enormes con unas vistas maravillosas. Nos encontramos con una distribución muy compartimentada.
Nuestro trabajo consistió en abrir los espacios enfocándolo hacia el exterior.
Objetivos
Nuestra principal premisa fue ganar amplitud mediante la destrucción de los tabiques y el pasillo. Distribuimos la zona de día uniendo salón, cocina y comedor con salida directa a las dos terrazas. Creamos dos habitaciones en suite, con baño incorporado.
Utilizamos el suelo de microcemento para unificar los espacios y darle un carácter fresco y de playa. Tanto los armarios como los muebles de baño se hicieron de pladur y sin puertas, ni cajones.
Otro elemento común es el uso de cortinas de lino y textiles naturales en todos los espacios. El color neutro de paredes y techos contrasta con el verde agua que escogimos para el mobiliario de cocina.
Créditos:
Fotografía: Merçé Ghost
Estilismo: Belén Campos












